Descrizione
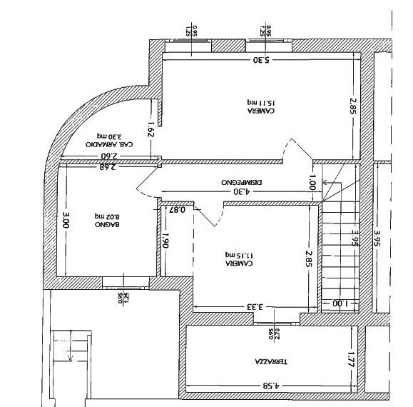
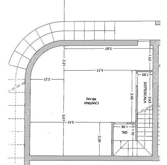
San Giovanni V.no zona Fornaci vendiamo terratetto di nuova costruzione, dislocato su due livelli oltre piano interrato, con piccolo redese e terrazza grande ,composto da : ampia cucina/soggiorno, bagno e resede al piano terra; due camere grandi (o una grande e due piccole) bagno e terrazza al primo piano; garage con cantina, ampio fondo di c.a 45 mq. Possibilità di personalizzare interni, consegna in 18 mesi. Ape Classe A.
L’agenzia immobiliare “VALDARNO AFFARI” nasce nel 1997 e si è sempre distinta nel corso degli anni per la sua professionalità e affidabilità. La nostra agenzia offre ai propri clienti un servizio completo a 360°, tra cui intermediazioni per compravendite e affitti di beni immobili abitativi, commerciali, artigianali, etc; consulenza tecnica, notarile e finanziaria; pratiche per mutui; stime; permute; consulenze immobiliari; vendita di immobili di pregio (in collaborazione con agenzie straniere); vendita di nude proprietà; assistenza totale fino all’atto.
Località dell’immobile: San Giovanni Valdarno /
Informazioni
- Locali
- 5



